Wohnquartier am Petersberg
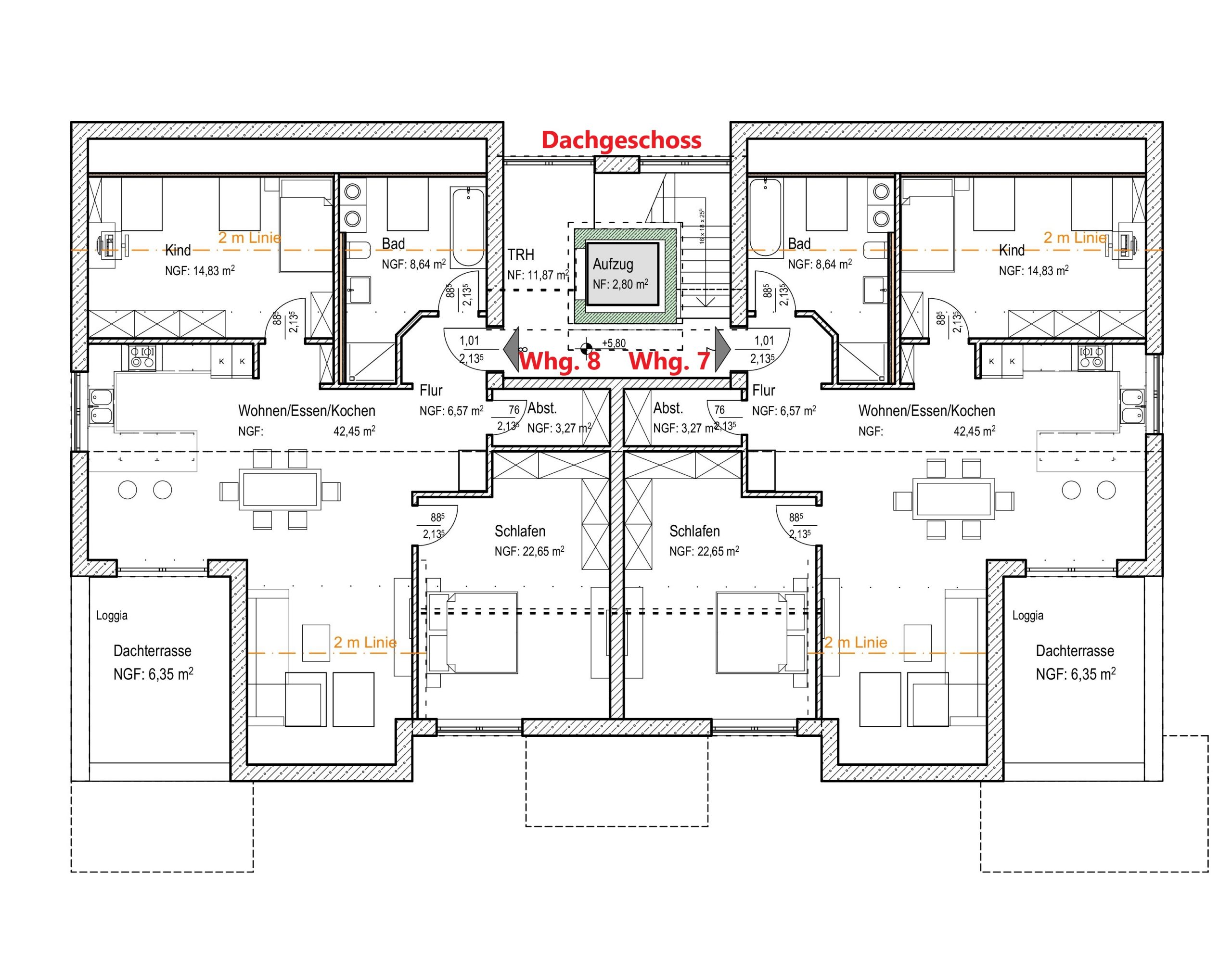
In Gau-Odernheim entsteht neben dem bereits erstellten Doppelhaus, ein Mehrfamilienhaus mit 8 Eigentumswohnungen. 2- 3- und 4 Zimmerwohnungen mit Wohnflächen zwischen 66 m² & 111 m² stehen zum Verkauf.
Die Ausführung erfolgt in modernster Bauweise.
Barrierefreier Zugang inkl. Aufzuganlage von der Tiefgarage bis ins Dachgeschoss.
Für nähere Informationen, können Sie uns gerne kontaktieren.
Mit den Abrissarbeiten wurde im April 2020 begonnen.
Die Bauarbeiten haben Mitte Mai 2020 begonnen.
Alle Eigentumswohnungen bereits verkauft.
Die mängelfreien Übergaben der Eigentumswohnungen sind Anfang Februar 2021 erfolgt.
Mehrfamilienhaus in Gau-Odernheim












































