Wohnquartier an der Burgkirche
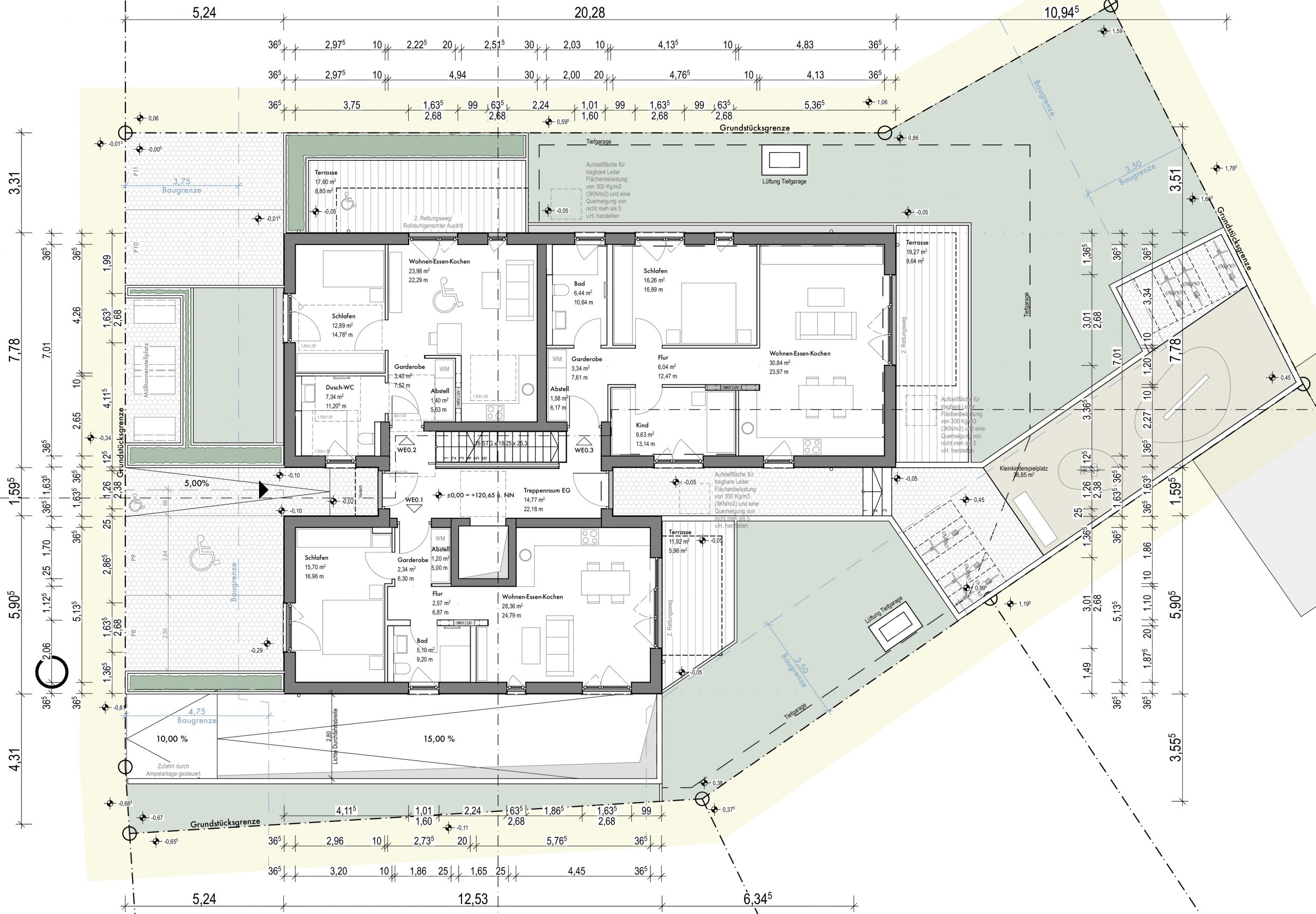
In 55218 Ingelheim entsteht ein Mehrfamilienhaus mit 7 Eigentumswohnungen. 2- 3- und 4 Zimmerwohnungen mit Wohnflächen zwischen 53 m² & 148m² stehen zum Verkauf.
Die Ausführung erfolgt in modernster Bauweise.
Barrierefreier Zugang inkl. Aufzuganlage von der Tiefgarage bis ins Dachgeschoss.
Für nähere Informationen, können Sie uns gerne kontaktieren.
Alle Eigentumswohnungen verkauft !
Mit den Bauarbeiten wurde im Oktober 2020 begonnen.
Am 20.11.2020 wurde die Bodenplatte betoniert.
Das Bauvorhaben ist fertiggestellt. Die Eigentumswohnungen wurden am 13.11.2021 an die Eigentümer übergeben.
Mehrfamilienhaus in Ingelheim





























































