9 Moderne Eigentumswohnungen in 67550 Worms
In absoluter Toplage von Worms Herrnsheim bieten wir Ihnen 9 Eigentumswohnungen in Energieeffizienter Massivbauweise nach GEG 2024 an. Die Häuser werden getrennt gebaut, damit keine Schallbrücke zum Nachbargebäude entsteht.
Wohnflächen von 60 m² – 89 m² auf 3 Etagen.
Ein wohldurchdachte Grundrisse mit 2-3 Zimmer Wohnungen.
Moderne Architektur gepaart mit modernen Akzenten, lichtdurchflutete Wohnräume.
Derzeit können Sie Ihre eigenen Wünsche und Ideen bei der Innenausstattung einbringen, natürlich soweit dies der Baufortschritt und die technische Durchführung zulässt.
Die gesamte Grundstücksgröße beträgt 1.105 m².
Kaufpreise:
Erdgeschosswohnung A01 – 67,59 m² Wfl. – Verkauft
Obergeschosswohnung A02 – 64,92 m² Wfl. – Verkauft
Dachgeschosswohnung A03 – 60,97 m² Wfl. – Verkauft
Erdgeschosswohnung B01 – 88,21 m² Wfl. – Verkauft
Obergeschosswohnung B02 – 85,13 m² Wfl. – Verkauft
Dachgeschosswohnung B03 – 75,40 m² Wfl. – Verkauft
Erdgeschosswohnung C01 – 86,45 m² Wfl. – Verkauft
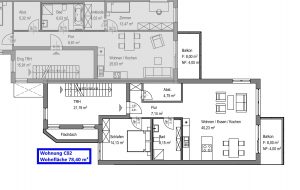
Obergeschosswohnung C02 – 86,26 m² Wfl. – Verkauft
Dachgeschosswohnung C03 – 77,88 m² Wfl. – Verkauft
Das Bauvorhaben wurde nach insgesamt 11 Monaten Bauzeit im Oktober 2025 an die Käufer übergeben.

Standardleistungen auf einen Blick
– Energieeffiziente Massivbauweise mit Bodenplatte
– 36,5 cm starkes Außenmauerwerk aus Porenbetonsteinen λ = 0.08 (W/m²K)
– Fenster und Fenstertüren mit 3-fach Isolierverglasung
– Elektrische Rollladenantriebe mit PVC Rollladenpanzer an allen rechteckigen Fenstern (ausgenommen Dachflächenfenster)
– Abschließbare Griffoliven an den Fenstern im Erdgeschoss
– Kunststoffhaustüren
– Natursteinfensterbänke im Innen- und Außenbereich
– Stahlbeton Innentreppen mit Fliesenbelag
– Walk-In-Dusche –
– Innentüren in Brillant-Weiß
– Moderne Bäder mit Designobjekten und Armaturen namhafter Hersteller
– Markenfliesen (30 cm x 60 cm) im Bad
– Fußbodenheizung mit Einzelraumthermostaten in allen Wohnräumen
– Beheizung über eine Luft-Wasser-Wärmepumpe
– Handtuchwärmekörper im Bad
Darstellungen und Grundrisse können Sonderausstattungen enthalten welche im Kaufpreis nicht enthalten sind.







































